HUISJEハウシェ
コテージを意味するHUISJE。落ち着きのあるシンプルな外観をした宝箱。その中には幾つもの「間」が組み込まれている。あたたかな木肌で包まれた開放感のある吹き抜けダイニング。薪ストーブの炎を楽しみながらこもれるヌック。ふと動きをとめ、家族の様子を眺めたくなるブリッジ。只々オープンなプランでは味わう事の出来ない多種多様な「居場所」が、家の至るところに生まれている。窓の向こうにひろがるお庭と、そこに根付いていく四季が空間構成に参加するとき、どれだけ過ごしても飽きのこない、素敵なHUISJEが出来上がる。
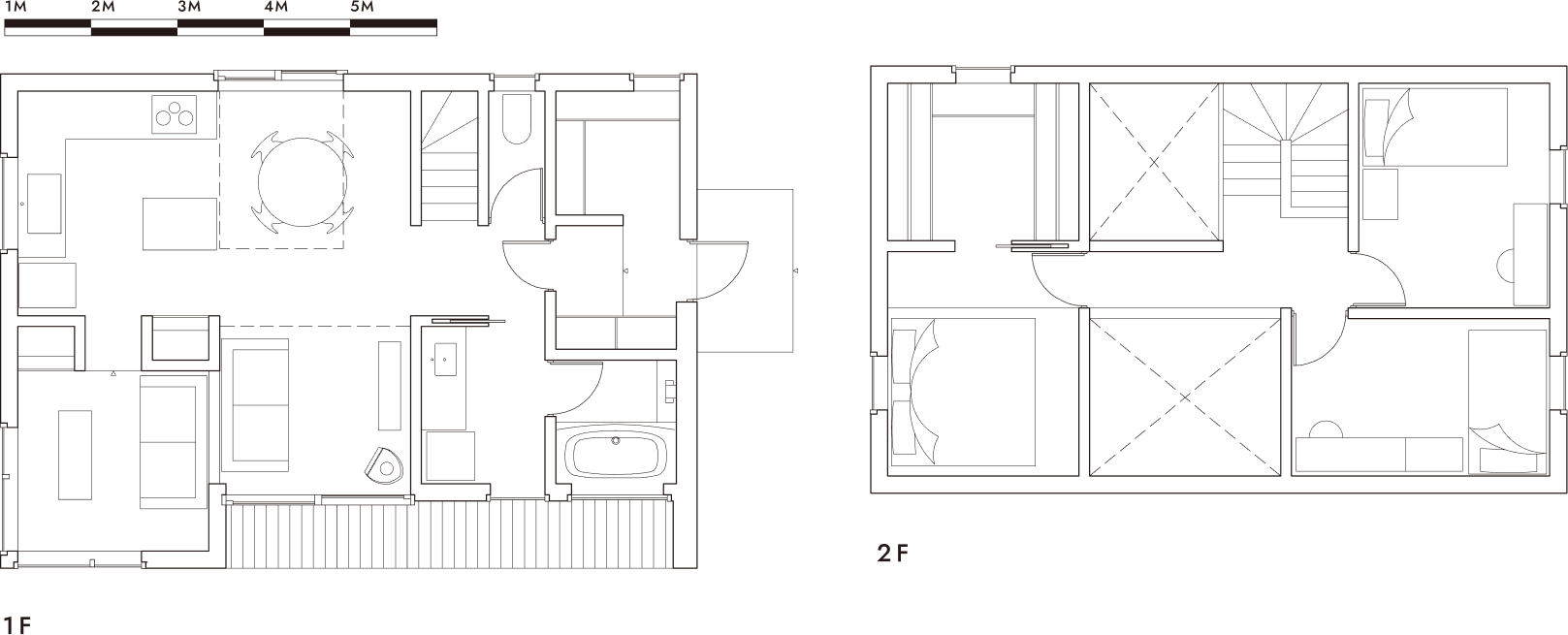
PLAN DATA
HUIZEN HUISJE 3LDKプランの1つ。元来、宿泊施設として計画されたプラン。性質上必要であった広い玄関土間収納は使い易さの観点からそのまま踏襲された。1階部分は4つのゾーニング(スクリーンルーム、リビング、ダイニング、キッチン)に分けられており、それぞれ全く異なる素材感、窓のスケール、そして天井高を持つ。各エリア、各アクティビティが、互いに存在感を主張し合いながらも、適度な間合いを取り、共存している。いつまでたっても飽きのこない、毎日を満喫させてくれる住まい。※規格住宅ではありません
※この間取りは参考プランです
HUISJE_PLAN 01
3LDK
- 住宅床面積
- 92.00㎡/27.75坪
- ポーチ
- 2.50㎡/0.75坪
- デッキ
- 5.80㎡/1.75坪










